www.portlandmetrohomesearch.com/homes/173067415
27231
SW
Vista Ridge Ln
Wilsonville,
OR
97070
Neighborhood:
Frog Pond Vista
Area:
151-Tigard/Tualatin/Sherwood/Wilsonville
Elementary School:
Stafford
Middle School:
Meridian Creek
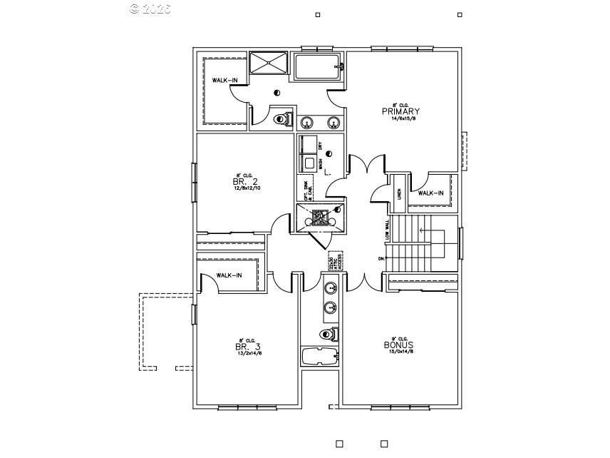
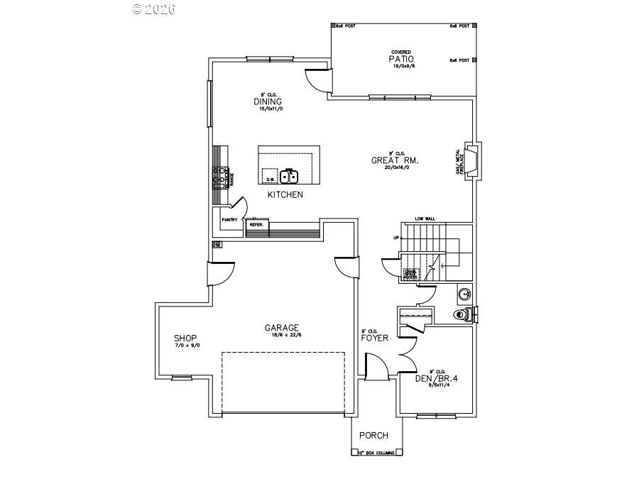
See a sales rep about our current rate buydown promo! This Farmhouse features 3 bedrooms up, with a den/4th bedroom on the main floor. Enjoy the spacious great room and gourmet kitchen with a large walk-in pantry and stainless-steel Whirlpool appliances. Enjoy the serenity the green tract behind this property has to offer on your huge covered rear patio. The primary suite features a soaking tub, full tile shower, dual vanities, and 2 large walk-in closets. Tour this plan today!
Architectural Style
Stories2 Farmhouse
Attached Garage YN
Yes
Exterior Description
Cedar Cement Siding
Exterior Features
Covered Patio Fenced Gas Hookup Patio Porch Public Road Sprinkler Yard
Foundation Details
Concrete Perimeter Pillar Post Pier
Garage Type
Attached
Lot Features
Green Belt Public Road
Parking Features
Driveway On Street
Parking Total
2
Road Surface Type
Paved
Roof
Composition Metal
View Description
Park Greenbelt Trees Woods
View YN
Yes
Additional Room Description
Bonus Room
Additional Room Level
Upper
Additional Room2 Description
_4th Bedroom
Additional Room2 Level
Main
Appliances
Builtin Oven Cooktop Dishwasher Disposal ENERGYSTARQualified Appliances Gas Appliances Island Microwave Pantry Plumbed For Ice Maker Quartz Range Hood Stainless Steel Appliance Tile
Basement
Crawl Space
Bathrooms Full Lower Level
0
Bathrooms Full Main Level
0
Bathrooms Full Upper Level
2
Bathrooms Partial Lower Level
0
Bathrooms Partial Main Level
1
Bathrooms Partial Upper Level
0
Cooling
Air Conditioning Ready
Cooling YN
No
Dining Room Features Cont
Vinyl Floor
Dining Room Level
Main
Fireplace Features
Gas
Fireplace YN
Yes
Fireplaces Total
1
Heating
Forced Air95 Plus
Heating YN
Yes
Interior Features
Garage Door Opener Laundry Lo VOCMaterial Luxury Vinyl Plank Quartz Soaking Tub Tile Floor
Kitchen Features
Dishwasher Disposal Island Microwave Pantry
Kitchen Features Cont
Builtin Oven Plumbed For Ice Maker Quartz
Kitchen11 Level
Main
Lower Level Area Total
0
Main Level Area Total
1079
Primary Bedroom Features Cont
Double Sinks Quartz Shower Soaking Tub Walkin Closet Wallto Wall Carpet
Primary Bedroom Level
Upper
Second Bedroom Features Cont
Walkin Closet Wallto Wall Carpet
Second Bedroom Level
Upper
Third Bedroom Features Cont
Closet Wallto Wall Carpet
Third Bedroom Level
Upper
Upper Level Area Total
1552
Window Features
Double Pane Windows Vinyl Frames
Accessibility Features
Garageon Main Main Floor Bedroom Bath
Accessibility YN
Yes
Association Amenities
Commons Front Yard Landscaping Maintenance Grounds Management
Association Fee
98
Association Fee Frequency
Monthly
Association YN
Yes
Bank Owned YN
No
Energy Efficiency Features
Car Charging Station Ready Double Pane Windows Forced Air95 Plus Insulationand Ceiling Insulation Solar Ready Tankless
Farm YN
No
Fuel Description
Electricity Gas
Green Certification YN
No
Home Warranty YN
Yes
Hot Water Description
Gas Tankless
IDXAddress Display YN
Yes
Internet Service Type
Cable Fiber Optics
Listing Terms
Cash Conventional VALoan
New Construction YN
Yes
Property Attached YN
No
Property Condition
New Construction
Property Sub Type
Single Family Residence
Senior Community YN
No
Sewer
Public Sewer
Short Sale YN
No
Tax Annual Amount
0
Tax Year
2024
Water Source
Public Water

Listing provided courtesy of Stone Bridge Realty, Inc: .
Listing content is copyright © 2026 RMLS™, Portland, Oregon. The content relating to real estate for sale on this web site comes in part from the IDX program of the RMLS™ of Portland, Oregon. Real estate listings held by brokerage firms other than Keller Williams Portland Central are marked with the RMLS™ logo, and detailed information about these properties includes the names of the listing brokers. Data last updated 2026-03-07T08:57:29.297.Data deemed reliable but not guaranteed. Some properties which appear for sale on this web site may subsequently have sold or may no longer be available. IDX information is provided exclusively for consumers’ personal, non-commercial use, and may not be used for any purpose other than to identify prospective properties consumers may be interested in purchasing. All information provided is deemed reliable but is not guaranteed accurate by RMLS™ or Keller Williams Portland Central and should be independently verified.